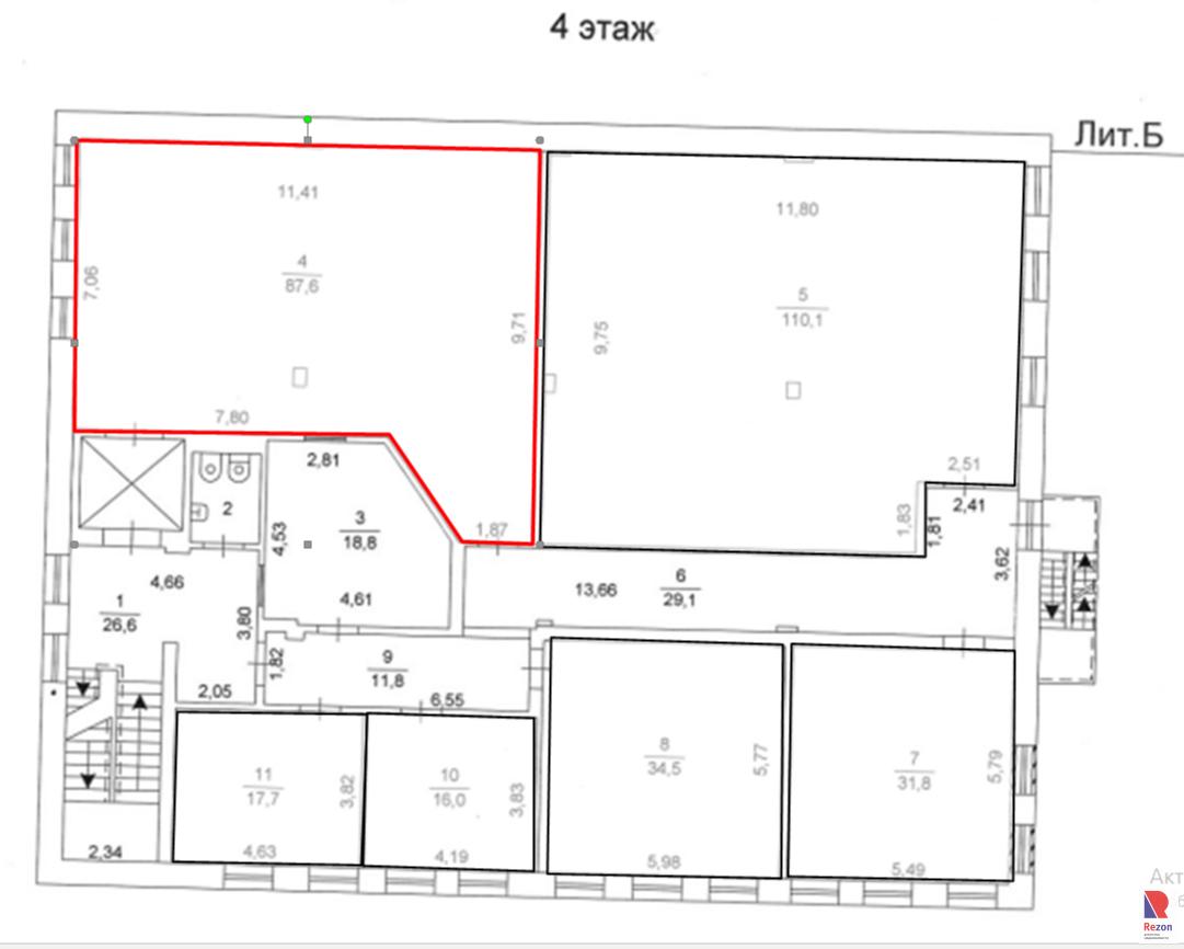
Офисное помещение 87 м²
Тип сделки:
аренда
Стоимость (руб./мес.):
55188
Этажей в здании:
4
Общая площадь:
87 кв. м.
Готовность к сделке 100%
55188 руб.
Оставить заявку
Описание
Характеристики
Тип объекта:
коммерческая
Тип сделки:
аренда
Страна:
Россия
Область:
Челябинская область
Город:
Челябинск
Улица:
улица Троицкая
Адрес:
улица Троицкая, 1Ж
Стоимость (руб./мес.):
55188
Общая площадь:
87 кв. м.
Этажей в здании:
4
Этаж:
4
Наличие фотографии:
да
Отзывы
Уже работали с нами?
Поделитесь своим мнением о качестве работы специалиста по недвижимости.
